PKPM结构系列软件
国内市场覆盖度达 95%以上,国内房屋建筑的主要设计软件。
“双碳”目标与平价上网的双重刺激下,使用新能源成为社会稳定发展的重要趋势。我国风资源理论蕴藏量超过10亿千瓦,且风力发电具有清洁性高、可持续强的特点。风力发电结构物具有高耸、大偏心受力、循环荷载作用、地质条件多样等特点。目前,风机单机容量已经超过10MW,对基础设计的安全性和可靠性要求越来越高,风机基础设计对于软件的需求越来越迫切。PKPM风机基础软件正是基于这样的背景研发的一款专门针对风机基础设计的专业软件。
本文以河南许继电力工程有限公司—河北某100MW风电场项目为例,介绍PKPM风机基础软件在实际项目中的应用流程及优化方式,旨在给广大设计师在风电项目设计中提供新思路。
一
工程概况
项目抗震设防烈度为7度0.173g,III场地设计,地震分组为第一组,特征周期值为0.45s。该风电场项目规划容量100MW,拟安装16台单机容量6.25MW的风力发电机组。风电机组高160m,基础形式拟采用桩基承台基础,基础埋深为-3.5m。叶轮直径200m,轮毂高度160m。项目基本信息详见表1。
|
项目 名称 |
基础 尺寸(φ) |
数量 |
地基基础设计等级 |
离地 高度 |
基础 埋深 |
结构 类型 |
拟采用基础类型 |
|
风电 机组 |
约22m |
16台 |
甲级 |
160m |
-3.5m |
混塔 |
桩基承台 |
表1 项目基本信息
二
设计依据
(1)《工程结构通用规范》(GB55001-2021);
(2)《混凝土结构通用规范》(GB55008-2021);
(3)《建筑与市政工程抗震通用规范》(GB55002-2021);
(4)《建筑与市政地基基础通用规范》(GB55003-2021);
(5)《混凝土结构设计标准》(GB/T50010-2010);
(6)《建筑地基基础设计规范》(GB 50007-2011);
(7)《建筑桩基技术规范》(JGJ 94-2008);
(8)《建筑地基处理技术规范》(JGJ 79-2012);
(9)《风电场工程等级划分及设计安全标准》(NB/T 10101-2018);
(10)《陆上风电场工程风电机组基础设计规范》(NB/T 10311-2019);
三
结构分析与设计软件的选用和简介
采用PKPM-FJ模块进行风机基础设计工作,PKPM-FJ模块采用统一的Ribbon界面,一体化的操作流程可以快速输入及导入导出地质资料,参数化建模塔身和基础,参数化输入风机荷载(正常运行工况、极端荷载工况、多遇地震工况、罕遇地震工况、疲劳荷载工况),参数化输入预应力锚栓、钢筋等关键信息;
基础计算分析支持规范算法和有限元算法两种,计算内容全面丰富,具体详见图1,共16项,满足风电项目基础设计需求;同时提供各单项图文计算结果以及包含有限元位移、内力、配筋等结果的风机基础整体计算书,支持一键生成风机基础施工图。

图1 计算内容
四
设计流程简介
4.1 提取风机塔身参数信息及设计参数输入
风机基础计算参数支持按照风机行业规范《风电场工程等级划分及设计安全标准》(NB/T 10101-2018)、《陆上风电场工程风电机组基础设计规范》(NB/T 10311-2019)修改安全等级和重要性系数,设置地基动态刚度验算参数。计算工况组合可以自动按照通规或者行业规范系数进行取值设计,也支持设计师手动交互输入修改,材料强度和钢筋强度、保护层厚度等参数也可以交互输入,可以满足设计师的设计需要。参数支持导入导出,方便类似工程设计参数的复用。本工程相关计算参数输入界面详见下图2。


图2 基本参数参数
程序提供两种地震力的输入方式,一种方式是根据输入的塔筒重量及高度信息程序自动计算多遇、罕遇地震工况下的风机塔筒底部内力标准值,另外一种方式根据厂家提供的风机基础提资资料直接输入,本工程采用第二种方式。操作页面见下图3。


图3 各工况内力标准值输入对话框
4.2 输入桩基承台基础尺寸信息
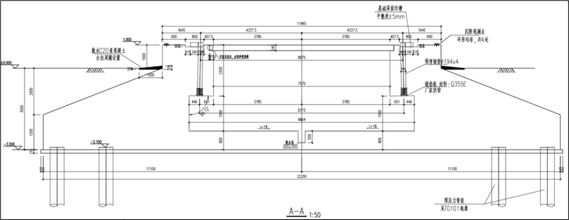
根据业主方提供类似项目的基础设计及施工提资资料做第一轮试算。本项目风机塔身为混凝土和钢混塔结构,根据设计要求采用桩基承台基础。厂家推荐的基础尺寸(详图4),将厂家提供的混塔基础详细尺寸输入至PKPM-FJ参数化建模对话框中。

图4 厂家提供相关型号风机基础推荐详图

图5 PKPM-FJ混塔基础尺寸信息输入界面
4.3 交互输入桩承载力、数量、位置、预应力锚栓、焊接钢筋网、板径环钢筋等信息



图6 交互输入桩及钢筋信息
4.4 PKPM-FJ基础计算结果
PKPM-FJ基础计算结果支持构件算法和有限元算法两种输出,软件目前支持基础脱开面积验算、地基、桩基承载力验算、软弱下卧层验算、基础抗倾覆、抗滑移验算、地基动态刚度验算、基础抗冲切、抗剪验算、基础沉降、倾斜、配筋、裂缝、疲劳计算、锚栓计算、局压计算、台柱配筋计算等16种计算结果输出(详见图1)。图7仅展示部分计算结果,软件输出每一项计算结果的详细计算过程,方便用户手工校核及整理计算文档。






图7 规范算法和有限元算法承载力、配筋、裂缝等结果展示
4.5 PKPM-FJ基础计算书及施工图
PKPM-FJ基础整体计算书专为风机基础设计打造,将风机基础建模的尺寸信息、荷载信息等整理汇总、自动进行基础体型检查,并将规范要求的基础脱开面积验算、地基、桩基承载力验算、软弱下卧层验算、基础抗倾覆、抗滑移验算、地基动态刚度验算、基础抗冲切、抗剪验算、基础沉降、倾斜、配筋、裂缝、疲劳计算、锚栓计算、局压计算、台柱配筋计算等16种计算结果进行整理汇总并给出判定结论方便审核。


图8 计算书内容展示
PKPM-FJ基础施工图支持钢筋表及开挖土方量,混凝土用量,钢筋用量,防腐面层面积等工程量统计。本工程利用PKPM-FJ软件快速对比直径22.2m、20.6m两种基础尺寸进行建模计算,并经软件施工图自带的工程量统计功能结果如下:20.6m直径基础除总桩长、总钢筋用量稍有增加外,在混凝土用量、土方开挖量、基础防腐面积等方面均下降超10%,综合经济效益明显,在向业主方汇报后最终选择20.6m的较小直径基础尺寸。
|
承台直径尺寸 |
桩总长度 |
总钢筋用量 |
总混凝土用量 |
土方开挖量 |
基础防腐面积 |
|
22.2m |
1050m |
78.0t |
792.0m3 |
2262.1m3 |
400.9m2 |
|
20.6m |
1100m |
78.6t |
673.6m3 |
2017.8m3 |
348.2m2 |
|
变化比例 |
↑4.8% |
↑0.76% |
↓14.9% |
↓10.8% |
↓13.1% |
表2 不同基础尺寸方案工程量对比



图9 风机基础施工图及工程量统计展示
五
总结
1)PKPM风机基础设计软件是一款专业的风机基础建模计算与分析设计软件。该软件交互便利,操作简单,计算内容全面贴合规范,计算结果合理。软件集成了构件算法与有限元算法两种计算结果输出功能,为设计师提供了多样的选择,满足在复杂项目多种方式校核的需求。
2)软件具备一键生成施工图功能,支持开挖土方量、混凝土用量、钢筋用量、防腐面层面积等统计,提升出图效率的同时也更有助于对项目成本的把控。
公司简介
河南许继电力工程有限公司作为许继集团全资子公司,深耕新能源、送变电、供配电、工程咨询、勘察设计等业务领域,专业提供电力工程总包、设计、运维、检修、试验等全链条服务,致力于打造国内知名的电力工程总承包服务商,为客户交付精品工程与一流服务。公司深度参与"微电网"、"金太阳"、"领跑者"、阳光扶贫、国补、平价等行业发展全阶段,与国电投、华润、华能、三峡等头部发电企业建立长期稳定合作关系,参建的濮阳500MW风电项目斩获"国家优质工程奖"与"中国电力优质工程奖"双项殊荣。2023年获评河南省质量诚信体系建设A级企业,2024年升级为AA级并荣获"中国电气装备先进集体"称号。公司始终秉持"以电站全生命周期LCOE最优为导向,以投资收益率为标尺,为市场和项目提供最优服务"的价值理念,持续推进技术创新与精益管理升级,在新能源工程领域积累了深厚的技术实力和丰富的项目经验。
国内市场覆盖度达 95%以上,国内房屋建筑的主要设计软件。
我国建设行业工程软件的支撑平台。平台&软件&生态。
节能与绿建系列设计分析软件,含多地官方指定节能软件。
国产自主研发,更符合中国建设标准和工作流程的BIM软件。
多格式模型的查看与审阅,免费、免注册、免激活,下载就能终身用